WEGHAFTES. ARCHITEKTUR UND LITERATUR




HOME

0.3.
/ WERKGRUPPE GRAZ -
Werkverzeichnis, Zeittafel


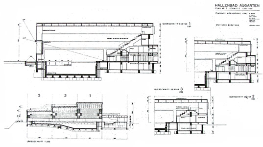
1961 | 50m-HALLENBAD | Hallen-, Freibad  | 8010 Graz

 
1.1 / EINFÜHRUNG / Vorwort des Herausgebers /
2.0 / WERKGRUPPE GRAZ /
3.1 / WERKGRUPPE GRAZ / Werkverzeichnis / Zeittafel /
3.2 / EUGEN GROSS - WERKGRUPPE - Wege, Räume, Gedanken /
3.3 / Die Wegphasen als Raum- und Grenzerlebnis /
3.4 / Der Weg in der Architektur - auf konzeptueller Spurensuche/
3.5 / Weggefährten, Konflikte, Herausforderungen/
 



PROJEKTE

 

       
 
  ÜBERSICHT
  WERKLISTE





Dem Entwurf für das Zentralbad Augarten liegen die Ergebnisse der Bäderforschung zugrunde. Es wurde das System des Hallen-Freibades vorgeschlagen, sodass die neue Anlage mit dem bestehenden Augartenbad eine Funktionseinheit ergibt. Das gewählte 51,5 x 20 Meter große Becken mit fahrbarer Startbrücke stellt durch die wahlweis mögliche Teilbarkeit eine optimale Lösung für Simultanverwendungen durch Publikum, Schulen und Vereine dar. Der gestaffelte Hallenschnitt udn Grundriss ergibt sich aus em Bestreben, nur im Bereich der Sprunganlagen die dort erforderliche Raumhöhe und im Bereich der Zielzone die größte Zuseherkonzentration zu erhalten, sonst jedoch ein wirtschaftliches Volumen anzustreben. Darüber hinaus waren akustische Gründe für die gewählte Hallenform maßgeblich.