WEGHAFTES. ARCHITEKTUR UND LITERATUR




HOME

0.3.
/ WERKGRUPPE GRAZ -
Werkverzeichnis, Zeittafel


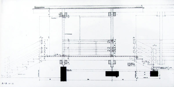
1965/66 | VORGEFERTIGTES HOLZBAUSYSTEM für Kabinentrakte von Freibädern | Gemeinden Lafnitz, Fehring, Altenmarkt, Tieschen, St.Ruprecht/Raab, Steiermark

 
1.1 / EINFÜHRUNG / Vorwort des Herausgebers /
2.0 / WERKGRUPPE GRAZ /
3.1 / WERKGRUPPE GRAZ / Werkverzeichnis / Zeittafel /
3.2 / EUGEN GROSS - WERKGRUPPE - Wege, Räume, Gedanken /
3.3 / Die Wegphasen als Raum- und Grenzerlebnis /
3.4 / Der Weg in der Architektur - auf konzeptueller Spurensuche/
3.5 / Weggefährten, Konflikte, Herausforderungen/
 



PROJEKTE

 
     
   
     
     
  ÜBERSICHT
  WERKLISTE







Nach dem Baukastensystem ausfegührte Badeanlagen:

1966 | Fehring
1966 | Tischen
1966 | St. Ruprecht/Raab
1967 | Altenmarkt