WERKGRUPPE
GRAZ
0.3. |
|
| |




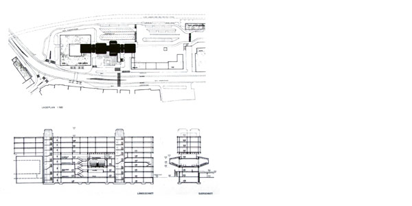
| Das zu errichtende Objekt sollte in städtebaulicher Hinsicht den
Europaplatz gegen Norden schließen und in signifikanter Weise die
Strukturhaftigkeit und den Vollzug kommunaler Verwaltungsarbeit und demokratischer
Urteilsfindung demonstrieren. Der Entwurf sieht vor, dass sich die Öffentlichkeit des Europaplatzes und des niveauverschiedenen Bahnhofsplatzes im Bereich der beiden unteren Geschosse des Gebäudes durchdringen und mit Hilfe von Brücken und Treppen die Vermittlung der beiden Niveaus hergestellt werden. Der Ratsaal stellt ein dominierendes Formelement in dem weitgehend transparenten Gebäudesockel dar. Darüber liegen an zwei formaktiven Fixpunkten als breit gelagerte Baumasse die einzelnen Verwaltungsfachbereiche. |