 |
WEGHAFTES. ARCHITEKTUR UND
LITERATUR
HOME |
3.3
Die Wegphasen als Raum- und Grenzerlebnis
/ Wegphase 8 /
/DER STRECKENRÜCKWEG /

Die Wegstrecke am Rückweg
zeigt einen ebensolchen Spannungszustand wie am erkundungsreichen Hinweg,
nur mit dem Unterschied, dass Ziel- und Heimgefälle identisch sind.
Die Geschwindigkeit nimmt zu, verbunden mit der Gefahr des Stolperns.
Nur der Boden fängt auf. Fischer: "Das Subjekt sucht im Raum,
was es in der Zeit verloren hat". Das Ziel ist tot, die Ankunft am
Ausgangsort verspricht Beheimatung. "Heimgehen" sind sowohl
die bergende Heimkehr in den Mutterschoss wie die Entäußerung
des Todes. Der Streckenrückweg kann die Form des Fluchtweges annehmen,
da Angst und Furcht aus der mangelnden Rückendeckung des verlorenen
Zieles entspringen. Der Entwurfsprozess wird in dieser Phase mit den sozialen
Bedingungen konfrontiert, die eine Lösung bedürfen. Sie durchdringen
die Bauaufgabe, die kommunikativen Netze und die Nutzung des Objektes.
Levinas: "Das Denken am Anderen" ist uns auferlegt.
3.3.8
Den Streckenrückweg zeichnet der reziproke Charakter des Streckenhinweges
aus. Je stärker er von diesem in seinem Verlauf abweicht, umso unabhängiger
wird er. Im Extremfall wird der zum Kreisweg wie in der Kontur des zu-
und abnehmenden Mondes. Der Streckenrückweg bedarf der Regeln, da
eine neue Orientierung auf das angestrebte Heim gesucht wird. Was der
Ariadnefaden für das Entkommen aus dem Labyrinth bedeutet, liegt
am Streckenrückweg in der Bewältigung räumlicher und zeitlicher
Hindernisse. Seine Gerichtetheit entscheidet über Ankommen und Verfehlen
des Heimes, Erfolg oder Scheitern der Heimkunft.
|
|
/ 3.3.8 / Wegphase 8 / Projekte und Realierungen
/ Chirurgische Universitätsklinik
Graz (1964) /
..........

Chirurgische Universitätsklinik
|

|

|

|

|

|

|

|

|
| |
|
|
|
/ Chirurgische Universitätsklinik
Graz [1964]/
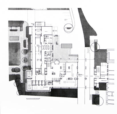
In den Jahren 1902 - 1912 wurde auf einem höher gelegenen
Plateau des östlichen Grazer Beckenrandes der große
Komplex des Landeskrankenhauses im Jugendstil errichtet. Zunächst
wegen seiner vorausschauend konzipierten Größe
stark kritisiert - der verantwortliche Ingenieur des Landesbauamtes
Adolf Rosmann verübte wie der Erbauer der Wiener Staatsoper
Van der Nüll Selbstmord - erwies es im 1. Weltkrieg als
dringend notwendiges Lazarett seine Tauglichkeit. Der Pavillontyp
nach dem Vorbild der Virchhow`schen Berliner Universitätsklinik,
auf eine Kirche ähnlich der Anlage der Heilanstalt Am
Steinhof in Wien ausgerichtet, erfüllte mit kleinen Adaptierungen
bis nach dem 2. Weltkrieg seine Aufgabe. Im Jahre 1964 wurde
unser Büro beauftragt, als erste große Erweiterung
die 1. Chirurgische Universitätsklinik neu zu planen,
wobei eine enge funktionelle Verflechtung mit dem weiter in
Betrieb befindlichen Altbaukomplex zwingend war. Neue Erfordernisse
der Herzchirurgie und der Neurochirurgie bezeichneten jenen
Schwerpunkt, der neben der Einrichtung von Bettenstationen
für 345 Patienten zu erfüllen war. Zugleich wurde
das LKH mit der Anlage eines Hubschrauberlandeplatzes für
Notfälle und einer für Österreich erstmaligen
OP-Druckkammer ausgestattet.
Als größtes Hindernis am Planungsweg erwies sich
der beengte Bauplatz nordöstlich der Gesamtanlage, zudem
durch eine Straße getrennt. Erste Erkundungen ergaben,
dass ein unterirdisches Verteilersystemsystem von Versorgungstunnels
im LKH besteht, das die freistehenden Pavillonbauten zusammenband.
Es wurde für Infrastrukturausstattung, Material- und
Personentransporte verwendet. Der aus der Situation abgeleitete
Planungsgedanke nahm strukturalistische Prinzipien auf (35),
die auf Kontinuität ausgerichtete Strukturelemente mit
akzidentiellen, zeitlich begrenzten Raumansprüchen verbindet.
Damit ermöglicht eine vorgegebene, als heimorientiertes
Kommunikationselement aufgefasste Struktur partielle zielorientierte
Entwicklungen, die ihren flexiblen Charakter behaupten. Der
Entwurf realisiert das Konzept, im Zeitraum 1964 - 1971 wurde
es umgesetzt.
Das 11- geschossige Hochhaus basiert auf einem hervorgehobenen
vertikalen Kommunikations-Turm für Lifte und Treppen,
der die horizontalen Netze im Untergeschoß auf Versorgungsebene
und im 1. Obergeschoß mit Anschluß an den Altbau
weiterführt. Im Untergeschossbereich sind zwei Ebenen
eines Strahlenschutzraumes und der abgesonderte Bereich der
Druckkammer angeschlossen, auf Dachgeschossebene hat der Hubschrauberlandeplatz
direkte Verbindung zum Kommunikationsturm. Die OP - Einheiten
sind im 1. Obergeschoß und 8. Obergeschoß angeordnet.
Die insgesamt 13 Bettenstationen greifen 2- achsig in Winkelform
vom Verteilerturm aus und ermöglichen in dieser Weise
eine symmetrische Erweiterung, die nunmehr 30 Jahre später
beabsichtigt ist. Das konstruktive Gerüst zeigt eine
außenliegende Rahmenstruktur, die im Inneren größtmögliche
Flexibilität gewährleistet. Der in schalreinem Beton
errichtete Bau hat in der Zwischenzeit zahlreiche innere funktionelle
Änderungen erfahren, an der Nordseite wurde im Jahre
2000 ein Versorgungsturm mit Anschluss an das nun automatisierte
unterirdische Versorgungssystem hinzugefügt (Planung
durch Arch. Di. Zernig).
Kein anderes Projekt wie die Planung der Chirurgischen Universitätsklinik
verlangte eine derart intensive Beschäftigung mit der
Situation des kranken Menschen wie den organisatorischen Vorkehrungen,
die seiner Behandlung unter humanen Bedingungen zugrunde liegen
müssen. Auch gezielte Studienreisen in Europa dienten
dieser Vorbereitung. Neben der Erfüllung der medizinischen
Ansprüche musste auf die Lebenssituation vor allem in
der Beschäftigung mit den Krankenzimmern eingegangen
werden. Der Entwurfsprozess enthüllte die Janusköpfigkeit
von Ziel- und Heimorientierung, die der existentiellen Grenze
zwischen Leben und Tod nahe ist. Architektur unter dieser
Kondition kann nicht Selbstverwirklichung sein, sondern ist
Dienst "am Anderen".
|
|
|