WERKGRUPPE
GRAZ
 |
WEGHAFTES. ARCHITEKTUR UND
LITERATUR
HOME |
3.4 / Der Weg in der Architektur-auf konzeptueller
Spurensuche
_______________________________________________________
WEG UND ORT - die Erschließung des Raumes
3.4.5 / "DAS UMKEHRPRINZIP" /
Die Annäherung an den gelebten Raum /
Entweder wir befinden uns auf dem Weg oder wir befinden uns an einem Ort.
Von unserem Verständnis her schließen sich Weg und Ort offenkundig
aus. "Am Weg sein" heißt sich bewegen, "am Ort sich
aufzuhalten" bedeutet in Ruhe zu sein. Eine beabsichtigte Erkundung
einer fremden Stadt können wir uns nur als Bewegung vorstellen, indem
wir den vorgezeichneten Wegen am Stadtplan folgen. Andererseits fassen
wir die Erwartung der Erreichung eines Berggipfels nach mühevollem
Aufstieg als Ruheort auf, der mit einem Wimpel markiert wird. Mit Schlüssen,
die die Welt ertasten, suchen wir nach Eindeutigkeiten, wir wollen etwas
"Gültiges" erfassen.
Gaudenz Domenig (1), ein Schweizer Stipendiat in Japan, befasste sich
mit den Grundzügen einer archaischen Raumordnung und versuchte eine
Analyse der Bewegung im architektonischen Raum. In begrifflicher Klärung
der Unvereinbarkeit von Weg und Ort im logischen Raum kommt er zum Schluss
zweier möglicher Haltungen gegenüber dem Problem: entweder der
Unmöglichkeit der Bewegung für das Denken oder der Unangemessenheit
des Denkens hinsichtlich des Erfassens der Bewegung. Die erste Haltung
reflektieren die tiefsinnigen Paradoxien des griechischen Philosophen
Zenon wie "Was sich bewegt, bewegt sich weder an der Stelle, wo es
ist, noch an der, wo es nicht ist." Der Satz besagt, dass Bewegung
für das logische Denken nicht gegeben ist. Er unterstreicht die Auffassung
der Wissenschaft, dass es ihre Aufgabe ist, alles messbar zu machen, dh.
Veränderungen an Ruhezuständen zu beschreiben wie das selbstverständliche
Ablesen der Skala eines Thermometers oder der Blick auf die Uhr. Dagegen
eröffnen die neuesten Erkenntnisse der Quantenphysik, dass Bewegung
im Kosmos nicht messbar ist, da alle Skalierungen selbst der Bewegung
unterworfen sind. Ein bisher vorherrschendes Wissenschaftsbild wird in
Frage gestellt.
Am Weg sein
Sich bewegen
|
 |
Ausschluss
|
|
Am Ort sein
Ruhen
|
Und dennoch, wir finden in der Geistesgeschichte,
in der abendländischen Mystik und vor allem im Denken des fernen
Ostens, ein "meta-logisches" Raumverständnis vor. Im Geiste
des Taoismus (Tao = Weg) sprechen die Worte Lao-Tse`s und belehren uns:
"Dreißig Speichen teilen die Nabe;
Das Loch in der Mitte macht es brauchbar.
Forme Lehm zu einem Gefäß;
Der innere Raum macht es brauchbar.
Bricht Türen und Fenster in ein Zimmer;
Die Öffnungen machen es brauchbar.
Man zieht Gewinn aus dem, was da ist;
Man zieht Nutzen aus dem, was nicht da ist."
(Spruch 11 im Tao Te King)
Darin wird dem Gewinn, der gedanklich dem Seienden zukommt ("was
da ist"), die Brauchbarkeit des Nicht-Seienden (was nicht da ist),
eben Fließenden, gegenübergestellt. Eine tiefere Schicht des
Bewusstseins wird angesprochen. Unserem Erleben allein erschließt
sich die Dimension, die der "Leere" eine ebensolche Bedeutung
zumisst wie der Fülle, dem materiellen Dasein. Wenn wir die Leere
durch den "Weg" ersetzen und die Fülle durch den "Ort",
erscheinen uns Weg und Ort in neuer Beziehung, schließen sich als
Ganzheitserfahrung nicht mehr aus. Die Architektur ist angesprochen. Das
"Weghafte" unserer Existenz, das Grenzen sprengt und uns fallen
lässt in den Raum des Staunens, kehrt den folgerichtigen Schluss
um. Ein Ort erscheint nur am Horizont, der Grenze. Doch wir können
ihn nicht greifen. Es wirft uns im Moment des Erreichens des Ortes an
den Anfang zurück, zwingt uns, immer neu zu beginnen - ein Umkehrprinzip
blitzt auf. Lässt das beschriebene Blatt zum ursprünglichen
leeren Blatt werden. Weckt beim Betrachten des gebauten Raumes die Sehnsucht
nach dem ursprünglichen Raum, dem die Leere nicht abhanden gekommen
ist. Was aber ist die Voraussetzung, um diesen glücklichen Moment
erleben zu können?
Kehren wir nochmals zurück zur Domenig`schen Raumanalyse, die auf
die Darstellung einer Annäherung an einen Heiligen Schrein, den Ise-Schrein,
in Japan zielt. Die Raumgestaltung auf dem Weg einer zunehmenden Heiligung
des Ortes lässt diesen in der Erwartung näher rücken, begegnet
dem Pilger aber zugleich mit einer Reihe von Hindernissen, die zu bewältigen
sind. Der Überwindung jedes Hindernisses, die dem glücklichen
Ankommen an einem provisorischen Ort gleicht, entspricht die Ungewissheit
über den weiteren Weg. Es kommt zu einer permanenten Umpolung. Beim
Ise-Schrein strukturieren Torii, Brücken und Waldstücke den
Weg auf das Heiligtum und lassen den sich Annähernden relative Weg-
und Ortverluste erleben, die in Momenten des Staunens begründet sind.
Uns erwächst eine Erkenntnis. Einem physiologischen Raumerleben,
wie es der lebendige Mensch hat, kann allein eine Komplentarität
von Weg und Ort gerecht werden, die einem ausgeglichenen Bewegungs- und
Ruhebedürfnis des Menschen entspricht (der ideale "Ort - Wegraum").
Reiner Ort- und reiner Wegraum sind tödlich. Daraus hat der Autor
ein Prinzip archaischer Raumgestaltung abgeleitet, das er das Prinzip
der "progressiven doppelten Verneinung" nennt. Er schreibt:
"Wo immer im Raum Unstetigkeitsstellen auftreten und auf ein Ziel
hin überschritten werden, muss, wenn auch noch so unmerklich, ein
Überraschungseffekt resultieren, mit dem eine `innere Bewegung`,
die Erschließung einer anderen Ebene des Erlebens verbunden ist."
Auf meta-logischer Ebene wird daraus ein Erschließungsprinzip angesprochen,
für das Gaudenz Domenig Allgemeingültigkeit beansprucht: "
Diese Augenblicke der Überraschung sind die Augenblicke der Ankunft,
des mystischen Überganges vom Weg zum Ort, wie umgekehrt die Momente
der unmittelbar folgenden Ernüchterung die Momente des erneuten Weg-Gehens
- im doppelten Sinn des Wortes - sind." Vermag die Architektur in
ihren gelungenen Werken diesem Raumerleben Bestätigung verschaffen?
Ist sie ein Balanceakt einer Ort - Weg - Kunst, die nur wie der Blitz
aufleuchtet, der seine Zeichnung an den Himmel wirft?
Le Corbusiers Wege in der Villa La Roche-Jeanneret, Paris 1923, realisieren
das Wegerlebnis auf ebendiese Weise. Elisabeth Blum (2) erkennt in ihnen
ein "Prinzip der verlangsamten Wahrnehmung", das die Corbu`sche
"promenade architecturale" auszeichnet und für den Betrachter
und Begeher (Corbusieur spricht vom `Ergreifen `des Raumes) zu einer mehrdeutigen
Wegerfahrung macht, die allein dem Erfassen des ästhetischen Objekts
gerecht wird. Es erfüllt den generellen Anspruch an die Kunst, nicht
allein dem Menschen zu dienen (einen Zweck zu erfüllen), sondern
ihn anzuleiten, sehen zu lernen (ergriffen zu sein). Lassen wir uns von
der Autorin führen: "Erst das Abschreiten der `promenade architecturale`,
die Weg-Begehung, ermöglicht die Summe mehrerer Lesearten des Objekts.
Das Spannungsverhältnis, das die Mischung zwischen Bekanntem und
Unbekanntem erzeugt, führt Betrachter oder Benutzer zu einer intensiveren
Form der Auseinandersetzung. Prinzipiell kann es sich bei dem Objekt um
ein Werk der Musik, der Malerei, der Architektur, der Dichtkunst usw.
handeln. Jede dieser Künste hat ihre eigenen Mittel, diese Verfremdungseffekte
herbeizuführen." Hier schließt sich der Kreis zu den Unstetigkeitszonen
oder "Schwellen" auf dem Weg zum Ise-Schrein, die den Pilger
bereit machen sollen auf das Ankommen am Heiligtum. Kann die Kunst auch
diese Heiligung hervorbringen, wenn sie dem Menschen Wunder des Sehens
, Hörens und Tastens erschliesst?
Dazu muss er bei Le Corbusieur die `promenade architecturale` erst wachen
Sinnes gehen. Sie soll an wenigen Stationen am Haus La Roche-Jeanneret
ins Bewußtsein gerückt werden. Sie beginnt bereits bei der
Annäherung, wenn das "Spiel mit der gestörten Symmetrie"
an der Fassade erfahren wird. Ist es ein Haus oder sind es zwei Häuser?
Vor dem Eintreten ziehen unterschiedlich proportionierte Flächen
zugleich an und stoßen ab, sprechen das empfindliche Wechselverhältnis
von Öffentlichkeit und Privatheit an. Im Eintreten unter den ausladendenden
Baukörper der Galerie des Hauses La Roche und im Durchschreiten des
engen Einganges erfolgt die Vorbereitung auf das unmittelbare Erlebnis
der Weite und Helle, wenn die mehrgeschossige Halle betreten wird. Diese
erscheint in ihrer Plastizität geradezu wieder als Außenraum,
polt das Wegbeschreiten in ein Platzgefühl um, indem die Augen rundum
geführt werden. Ist man schon im Zentrum des Hauses, oder entzieht
sich dieses neuerlich ? Die strahlend weiße Sichtwand an der Rückseite
führt weiter, schmale abgewinkelte Wegführung über Treppen
und farbige Wandteile erzeugen den Sog der Neugierde, doch mehr zu erkunden,
vielleicht das "Heiligtum" des Hauses. Und in der Tat ist dieses
die Galerie mit Bildern, den Weggefährten metaphysischer Erlebnisräume.
Und selbst die Galerie verspricht noch eine neue Dimension, das Heraufschreiten
der gekrümmten Rampe an der Längswand, von Oberlichten geführt,
zur Bibliothek, der Reliquie des gesammelten Wissens der Menschheit. Identität
wird gefunden, aber es ist nicht die logische einer zweckgerichteten Ableitung
aus Funktionen, sondern der kompositorischen der Harmonie der Gegensätze,
die den Weg zum Wegerlebnis werden ließen.
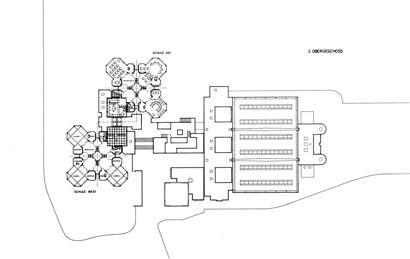
Im Begehen der Schule Kapfenberg - Walfersam 1967 soll dieses Wegphänomen
an einem Projekt der Werkgruppe als Versuch zum tieferen Verständnis
deutlich gemacht werden. Von einem Vorplatz führt der Weg zunächst
über eine ein halbes Geschoss überwindende Treppe zum Eingang,
womit der Erwartung widersprochen wird, die Schule direkt auf Straßenniveau
betreten zu können. Der erhöhte kleine Vorplatz erscheint dann
als teilweise bepflanzte Fläche (Kräutergarten), die die Natur
ins Haus hereinzieht. Umfangen von einem ausladenden, schützenden
Vordach betritt man die längsgerichtete Eingangshalle, von der die
Weiterführung in die beiden versetzt angeordneten Schuleinheiten
der Mädchen- und Knabenvolksschule möglich ist. In diese Halle
waltet die `Leere`, ein Einatmen vor dem Eintreten in die Klassentrakte
durch eine verengende Öffnung. Der Eintritt in diese Klassentrakte
vermittelt wiederum einen Halleneindruck, jedoch ganz unterschiedlicher
Art. Um ein zentrales Treppenauge, das das Licht vom Dachgeschoss bis
in das Untergeschoss durchfluten lässt, wird man vor die Entscheidung
gestellt, auf- oder absteigen zu wollen. Die räumliche Spirale des
Treppenhauses, das als leichte Stahlbrücke die viertelgeschossig
versetzten Klasseneinheiten verbindet, offenbart einen einzigen Großraum,
der jedoch mit jedem Schritt anders erscheint und nur im Begehen erfasst
werden kann. Die aus den aus den achteckigen Klasseneinheiten mit Garderobe
und Lehrmittelraum heraustretenden erweiterten Unterrichtsbereiche springen
in Treppenpodeste um, die als Auflager der Treppenstufen dienen. Der gesamte
Raum wird in den Sog von unten nach oben wie von oben nach untern einbezogen,
wie Aus- und Einatmen einander bedingen. Das Erlebnis der Schule soll
sich über ihre Funktion als Bildungsstätte erheben.
Weg und Ort enthüllen in diesem Entwurf ein "Umkehrprinzip",
das jeden Ort im Haus weghaft, jeden Weg orthaft werden lässt. Dieses
kennzeichnet eine neue Typologie im Schulbau, die weder den Merkmalen
einer Gangschule noch denen einer Hallenschule entspricht. Die Komplexität
der räumlichen Beziehung spiegelt, wie es Lehrer und Schüler
bestätigten, eine neue Form des auf einer intensiven Lehrer- Schülerbeziehung
fußenden Unterrichts, der in seinem kommunikativen Charakter nach
unserer Überzeugung derjenige der Zukunft sein wird.
|
|

Der Philosoph Zenon
|

Japanisches Torii |

Le Corbusier
Villa La Roche-Jeanneret, Paris 1923
|

Schule Kapfenberg-Walfersam
Fotos: Eckhart Schuster
|
|
|
|
|
|
|
|
|
|
|
|
|
|
|
| (1) Gaudenz
Domenig, "Weg - Ort - Raum", Versuch einer Analyse
der Bewegung im architektonischen Raum, in BAUWELT, 1968 |
| (2) Elisabeth
Blum, "Le Corbusiers Wege", Wie das Zauberwerk in
Gang gesetzt wird, Bauwelt Fundamente 73, Hrsg. Ulrich Conrads
u. Peter Neitzke, Birkhäuser / Vieweg - Verlag 1991 |
LINK
/ 3.2 / Werk Gruppe Graz - Wege, Räume, Gedanken/ 3.2.14
/ Schule Kapfenberg - Walfersam /
LINK
/ 3.3 / Wegphase7 - Die Umkehr / AHS Kapfenberg |
|
|